DIN ISO 23601
Wird ein normgerechter Flucht- und Rettungsplan erstellt, sind einige wenige Punkte unmissverständlich dieser DIN entsprechend umzusetzen.
Alle wichtigen Serviceleistungenaus einer Hand.
Rettungspläne lassen sich am besten in enger Zusammenarbeit mit Ihnen erstellen.
Um Ihre Wünsche preiswert umzusetzen, sind wir über Ihrer Mitarbeit sehr erfreut.
Gerne erledigen wir alle anfallenden Aufgaben in Absprache mit Ihnen für Sie, doch ebenso gerne begleiten wir Sie bei der Erfüllung vielfältiger Aufgaben beim Erstellen der Fluchtpläne.
Wir kümmern uns gemeinsam mit Ihnen um Ihre Flucht- und Rettungspläne.
Rettungspläne lassen sich am besten in enger Zusammenarbeit mit Ihnen erstellen.
Um Ihre Wünsche preiswert umzusetzen, sind wir über Ihrer Mitarbeit sehr erfreut. Gerne erledigen wir alle anfallenden Aufgaben in Absprache mit Ihnen für Sie, doch ebenso gerne begleiten wir Sie bei der Erfüllung vielfältiger Aufgaben beim Erstellen der Fluchtpläne.
So können Sie sich zum Beispiel bei den folgenden Aufgaben einbringen:
- stellen Sie uns den Plänen dienlichen Unterlagen zusammen
- holen Sie gegebenenfalls Unterlagen beim Bauamt oder Katasteramt ein
- im Verlauf der Zeichnungsarbeiten können Sie Zwischenstände auf deren Richtigkeit vor Ort prüfen
- gleichen Sie die gezeichneten Pläne mit der tatsächlichen, baulichen Situation vor Ort ab
- Sie können die Pläne nach erfolgreicher Prüfung an den vorgesehenen Orten montieren
Je nach Erfahrung und Geschicklichkeit im Umgang mit dem digitalen Zeichnen, können die Pläne durch Sie erstellt werden. Wir bieten Ihnen dabei gerne Unterstützung an und korrigieren, falls erforderlich, Ihre Zeichnungen, um formale Anforderungen zu gewährleisten.
Sollten schon Zeichnungen vorliegen, bringen wir diese gerne gemeinsam mit Ihnen auf eine der DIN entsprechende Qualität.
Ihre Rettungspläne können mehr sein als einfach nur Orientierungspläne.
Jeder digital erstellte Fluchtplan kann ein wohl sortiertes Zusammenspiel aus verschiedenen Zeichnungsebenen sein. Jede Ebene enthält dann Objekte, welche beim Zusammenstellen des Planes sichtbar oder auch nicht sichtbar werden können.
Treffen wir vorab kluge Absprachen mit Ihnen, ist es möglich, die Rettungspläne zugleich auch in anderer Form für das vorhandenen Gebäude zu nutzen:
- als Bild zur schnellen und dennoch genau gezeichneten Weitergabe
- als digital einlesbare Daten in vielen gängigen Zeichenprogrammen
- als PDFs für jede weitere Nutzung
Digital erstellte Rettungspläne sind somit zugleich der Übergang vorhandener Grundrisse, hin zu digitalisierten, aktuellen Plänen, nutzbar für Sie in jeglicher Form.
Nutzen Sie Ihre Rettungspläne zugleich als Aushängeschild Ihres Gebäudes.
Präsentieren Sie mit Ihren Rettungsplänen Ihr Unternehmen, Ihre Einrichtung. Zeigen Sie Ihre Architektur und zugleich ein klug ausgearbeitetes Brandschutzkonzept.
Hier haben Sie ganz bescheiden die Möglichkeit, eine einfache Halle in deren klarer effektiver Funktion darzustellen oder aber die vielleicht nicht vordergründig ersichtliche architektonisch umgesetzte Idee eines Gebäudes sichtbar zu machen.
Welche Struktur durchzieht Ihr Gebäude, welche baulichen Dimensionen verbergen sich dahinter, ist es kleinteilig, aneinandergereiht, strukturiert oder ständig dem Nutzen entsprechend erweitert worden?
Gekonnt gezeichnet unter Einhaltung der Anforderungen an Ihre Fluchtpläne, können die Pläne zugleich architektonische Elemente deutlich werden lassen.
Ihre Rettungspläne im Abgleich mit der tatsächlich momentan vorhandenen Situation vor Ort, lassen ersichtlich werden, ob Sorge, Verantwortung, Wertschätzung bei den Nutzern des Gebäudes gelebt wird.
Ihre Fluchtpläne erfüllen vielerlei Anforderungen und zeigen obendrein Bereiche auf, die meist nicht einsehbar und verschlossen sind oder unzugänglich erscheinen.
Den im Gebäude täglich beschäftigten Menschen zeigen Flucht- und Rettungspläne immer wieder Details und Möglichkeiten, die dem Brandschutz zuträglich sind.
Diese ständig sichtbare und immer wieder den Veränderungen angepasste Dokumentation über den erforderlichen und gebauten Brandschutz, prägt sich bei kluger Platzierung der Pläne unweigerlich ein.
In den Rettungsplänen zeigt sich unverrückbar, wo Einrichtungen für den Brandschutz sind oder aber auch welche Einrichtungen einmal platziert waren und oftmals dringend wieder zu platzieren sind.
Unmissverständlich werden Fluchtwege aufgezeigt, Ausgänge in deren Funktion als Fluchtweg klassifiziert und deren weiterer Verlauf einsehbar.
Die Rettungspläne verschaffen Übersicht über die Umgebung und ermöglichen somit die Zuversicht, im Ernstfall zu wissen, wo Rettung oder Abhilfe zu finden ist.
Leider ist es vielen Menschen nicht vergönnt, bei der Betrachtung eines Grundrisses zugleich die daraus resultierende räumliche Vorstellung zu erfahren. Es bleibt ein Bild ohne Verbindung zu der direkten Umgebung.
Daraus entsteht erst recht die Notwendigkeit, Flucht- und Rettungspläne so zu platzieren, dass alle NutzerInnen des Gebäudes während deren Alltagsgeschehens ganz selbstverständlich vor den Plänen verweilen werden.
Was liegt somit näher, als ansprechend gestaltete Rettungspläne vor und in Aufzügen, Teeküchen, Fluren, vor Toilettenräumen, in Warteräumen und Pausenräumen zu montieren.
Die Montage ist ein kluges Miteinander aus erfahrenen Mitarbeitern und fachkundigen Personen.
Dieses dann fest platzierte Ergebnis wird unweigerlich mehr Wert für das Unternehmen erzeugen, als den Rettungsplänen in deren brandschutztechnischer Forderung unbedachterweise leichtfertig zugemutet wird.
Anhand Ihrer Rettungspläne führen Sie Schulungen, Notfallübungen oder Unterweisung für hinzukommende Personen und Beschäftigten durch.
Was ist vorab zu klären, zu prüfen und zu recherchieren.
Sollen wir für Sie Rettungspläne erstellen, anpassen oder aktualisieren, dann sind vor Beginn der Zeichenarbeiten einige Fragen zu besprechen, um Änderungen und somit Mehrkosten zu vermeiden.
Wichtige, zu klärende Punkte können sein:
- Gibt es festgelegte Brandschutzmaßnahmen, gibt es ein Brandschutzkonzept?
- Gibt es Grundriss- und Grundstückzeichnungen, in welcher Form und Aktualität sind diese vorhandenen?
- Wie sehen die Fluchtwege derzeit aus, sind diese nutzbar und sinnvoll?
- Gibt es Dokumentationen zu möglichen Evakuierungsmaßnahmen?
- Sind Anweisungen nötig, welcher Art sind diese, wie und wann sind diese Anweisungen nötig?
- Wo sind Standorte der Alarmierungssysteme und Brandbekämpfungseinrichtungen?
- Wo befinden sich Notfallausrüstungen und Evakuierungshilfen?
- Wo finden sich Zufluchtsorte (sichere Bereiche und Sammelstellen)?
- Müssen im Notfall Maßnahmen geleistet werden, stellt sich die Frage, wo diese geplant, dokumentiert und einsehbar sind?
Wird ein normgerechter Flucht- und Rettungsplan erstellt, sind einige wenige Punkte unmissverständlich dieser DIN entsprechend umzusetzen.
Zusätzliche Normen sollten beachtet werden
ISO 3864-1
ISO 3864-3
ISO 7010
ISO 17398
ISO 17724
ISO 16069
Beschreibung einiger wesentliche Vorgaben aus der
DIN ISO 23601.
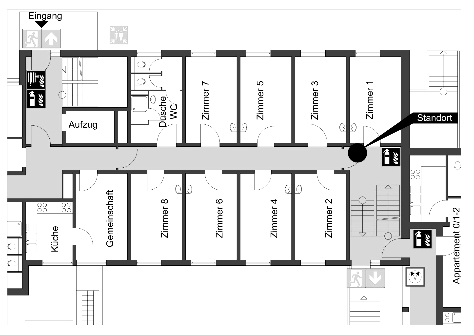
Der
Standort.
Wo befinden wir uns mit dem jeweiligen Rettungsplan im Gebäude und welche Richtung nehmen wir beim Betrachten des jeweiligen Planes ein?
Einrichtungen und Dinge zur rechten Seite von uns sind dann auf dem jeweiligen Plan auch rechts von uns dargestellt. Gleiches ergibt sich dann auch zur linken Seite.
Die
Sammelstellen.
Wo treffen sich die Nutzer des Gebäudes im Ernstfall und bei Übungen?
Diese Plätze sind immer zu bestimmen und in den Plänen einzuzeichnen.
Die
Farben.
Flucht-und Rettungspläne werden farbig erstellt.
Um eine europaweite Vereinheitlichung zu erreichen, sind die Farben in der DIN ISO 23601 genau festgelegt.
Der Hintergrund der Flucht- und Rettungspläne werden in deren Hintergrund in der Farbe Weiß angelegt.
Zu beachten ist hier die ISO 3864-1:2002, Tabelle
Achten Sie darauf, verblasste und vergraute Pläne zu überarbeiten!
Der
Maßstab.
Die DIN macht hier Vorgaben, diese sind mit den Gegebenheiten vor Ort abzustimmen.
Wesentlichen Einfluss darauf haben die Ausdehnung des darzustellenden Bereiches, die zeichnerische Genauigkeit des darzustellenden Bereiches und der Platz am vorgesehenen Montageort.
Folgende Maßstäbe sind bevorzugt anzuwenden:
- 1:250 für große bauliche Anlagen
- 1:100 für kleine und mittlere bauliche Anlagen
- 1:350 für Pläne, die in einzelnen Räumen angebracht werden (z.B. Hotelzimmer)
Sollen Bereiche des Gebäudes hervorgehoben dargestellt werden (z.B. Treppen und Flure), wird dazu ein größerer Maßstab genutzt.
Vorab ist zu bedenken, dass meist mehrere Rettungspläne an den jeweils dafür vorgesehenen Orten platziert werden und sich dazu eine Darstellungsart durchsetzen sollte, welches in dessen Größe, Form, Aufteilung und Maßstab möglichst gleich sein kann.
Die
Beleuchtung.
Nicht einfach sind die Vorgaben zu der eventuell nötigen Beleuchtung der Pläne.
Selbstverständlich achten Sie darauf, dass die Fluchtpläne im Normalbetrieb gut lesbar und ausreichend beleuchtet werden, aber wie sieht es damit aus, wenn im Ernstfall die Beleuchtung ausfällt.
Diese Normen machen hierzu detaillierte Angaben
DIN ISO 23601, ISO 16069 und ISO 17398
Das
Format.
Fluchtpläne werden im A3-Format erstellt.
In einzelnen Räumen, wie Hotelzimmer, wird das A4-Format verwendet.
Die
Legende.
Die verwendeten Zeichen, graphischen Symbole und Farbcodes werden in einer Legende aufgeführt und erklärt.
Die
Überschrift.
Immer findet sich im oberen Bereich die Überschrift 'Flucht- und Rettungsplan' in der jeweiligen Landessprache. Groß- und Kleinbuchstaben werden verwendet.
Der
Übersichtsplan.
Ist die bauliche Anlage in deren Größe in einem sinnvollen Maßstab so darstellbar, dass sich daraus eine Übersicht ergibt, kann auf den meist notwendigen Übersichtsplan verzichtet werden.
In einem Übersichtsplan sind mindestens folgende Angaben zu finden
- Sammelstellen
- ein Gesamtplan der baulichen Anlage des Grundstückes - vom Detailplan betroffene Bereich sind hier zu markieren
- die Umgebung ist vereinfacht darzustellen (Straßen, Parkplätze, andere bauliche Anlagen)
Der Übersichtsplan soll in dessen Größe 10 % der Fläche Rettungsplanes nicht überschreiten.
Der
Detailplan.
Falls ein Detailplan erforderlich ist, gibt es hier einiges zu beachten.
Der Grundriss des relevanten Teils wird so abgeändert, dass unwichtige Einzelheiten entfernt worden sind, alle wichtigen Bestandteile hervorgehoben werden und die Lesbarkeit verbessert wird.
Der Plan wird dem Standort des Betrachters entsprechend lagerichtig dargestellt, der Standort wird aufgezeigt.
Treppen, Notausgänge sowie horizontale und vertikale Fluchtwege sind darzustellen.
Vorrichtungen zur Evakuierung von Personen mit Behinderungen werden eingezeichnet.
Standorte und Art der Geräte für die erste Brandbekämpfung sowie Notfall- und Rettungsausrüstung sind aufzuzeigen.
Die
Regeln für das Verhalten im Brandfall und bei Unfällen.
Diese Verhaltensregeln werden meist auf dem Fluchtplan dargestellt.
Diese Regeln können aber auch in der unmittelbaren Nähe des Planes platziert werden, falls der Platz innerhalb des Rettungsplanes zu klein ist.
Weitere
notwendige Angaben.
Achten Sie auf folgende sinnvolle weiter Angaben
- PlanerstellerIn
- Datum der Planerstellung
- Revisionsnummer, Plannummer
- Name der baulichen Anlage
- Geschossbezeichnung
Die Größen der Elemente
eines Flucht- und Rettungsplanes.
Hier macht die DIN ISO 23601 klare Angaben.
Buchstaben
werden mindestens 2 mm hoch dargestellt.
Die Überschrift
beträgt mindestens 7 % des Flucht- und Rettungsplanes, die kürzere Blattseite gilt als Bezugsgröße.
Die Buchstabenhöhe der Überschrift beträgt dann mindestens 60 % der Höhe der Überschrift.
Die Sicherheitszeichen
in den Plänen werden mindestens 7 mm hoch dargestellt.
Die Linienbreiten
- 1,6 mm dicke Linien für Wände der baulichen (mindestens)
- 0,6 mm dicke Linien für Innere Trennwände (mindestens)
- 0,15 mm dicke Linien für Einzelheiten auf dem Plan (z. B. Treppen, Regale, Fenster)
Um dem Betrachter eine Vorstellung über das Ausmaß langer Fluchtkorridoren zu vermitteln, werden architektonische Details oder Ausstattung dargestellt.
Die mindestens 7mm hohen einzuzeichnenden Sicherheitszeichen können oftmals nicht direkt an deren Ort eingezeichnet werden, da sonst wichtige Details verdeckt werden.
Hier können diese Zeichen dann am nächstgelegenen freien Platz eingezeichnet werden mit einer Hilfslinie, die zum tatsächlichen Anbringungsort führt.



