FeuerwehrplanDIN 14095
Feuerwehrpläne für bauliche Anlagen werden in der DIN 14095 behandelt.
Alle wichtigen Serviceleistungenaus einer Hand.
Feuerwehrpläne machen genaue Angaben zu Besonderheiten und Risiken auf dem Gelände und in dem Gebäude.
Sie dienen der Einsatzvorbereitung und der raschen Orientierung sowie der rechtzeitigen Beurteilung der Lage.
Feuerwehrplan nach DIN 14095.
Die DIN 14095 wird immer wieder mit dem Erstellen von Flucht- und Rettungsplänen verknüpft.
Dafür sind jedoch die ASR A 2.3 und die DIN ISO 23601 zuständig.
Wir legen die DIN 14095 dem Erstellen von Feuerwehrplänen zugrunde.
Um den Begriff Feuerwehrplan kursieren wiederum weitere Bezeichnungen, die wir hier näher erläutern wollen.
Folgende Bezeichnungen werden oft genannt
- Der Feuerwehrplan
- Der Objektplan
- Der Übersichtsplan
- Der Einsatzplan
Der
Feuerwehrplan.
Der Feuerwehrplan ist ein vorbereiteter, bei der Feuerwehr hinterlegter Plan.
Dieser Plan kann ein oder mehrere Pläne enthalten, oft ist eine textliche Erläuterung vorgeschaltet.
Diese Unterlagen ermöglichen es den Einsatzkräften, sich schon auf dem Weg zum Einsatz vor Ort und im Einsatzfahrzeug auf die Brandbekämpfungs- und Rettungsmaßnahmen vorzubereiten.
Feuerwehrpläne machen genaue Angaben zu Besonderheiten und Risiken auf dem Gelände und in dem Gebäude.
Sie dienen der Einsatzvorbereitung und der raschen Orientierung sowie der rechtzeitigen Beurteilung der Lage.
Je nach Objekt und Nutzung sind hier unter anderem Übersichtspläne, Geschosspläne und/oder Abwasserpläne erforderlich.
Zu beachten ist, dass viele Einrichtungen zu den Brandbekämpfungen im Feuerwehrplan im Gegensatz zu den Rettungsplänen nicht eingezeichnet werden.
Dies können Selbsthilfeeinrichtungen, Wandhydranten Typ S nach DIN 14461-1, tragbare Feuerlöscher, Löschdecken, Brandschutzklappen, Brandmelder, Kennzeichnungen von Rettungswegen sein.
Auch Feuerwehrpläne werden selbstverständlich stets durch eine sachkundige Person auf dem aktuellen Stand gehalten.
Die DIN 14095 dient dazu, die von der Feuerwehr für bestimmte bauliche und technische Anlagen benötigten Pläne zu vereinheitlichen.
Feuerwehrpläne gehören nicht zu den Bauvorlagen, können jedoch von der Baugenehmigungsbehörde gefordert werden.
Ob für eine bauliche Anlage Feuerwehrpläne erforderlich sind, richtet sich nach Lage, Art und Nutzung der baulichen Anlage.
Ein Feuerwehrplan besteht üblicherweise mindestens aus
- einem Übersichtsplan (Lageplan)
- einem Objektplan (Grundriss/Geschossplan)
- einem Verzeichnis mit Legende
- einer textlichen Erläuterung und
- allgemeinen Objektinformationen
Der
Übersichtsplan.
Im Übersichtsplan stellen wir den gesamten Komplex der Gebäude oder des Gebäudes in dessen Umgebung dar mit einer Vielzahl an wichtigen weiteren Informationen, die da sein könnten
- Unmittelbare Nachbargebäude, Straßen mit Straßennamen, Zufahrten und Anbindung an öffentliche Straßen
- Sich auf dem Gelände befindliche Straßen, Wege, Bewegungsflächen
- Aufstellflächen für die Einsatzfahrzeuge, Einfriedungen, nicht befahrbare Flächen
- Festgelegte Sammelstellen, Bereiche mit besonderen Gefahren
Weitere im Übersichtsplan enthaltene Informationen
- Technische Einrichtungen wie Löschwasserentnahmemöglichkeiten aus Hydranten, Behältern oder offenen Gewässern und die zur Verfügung stehenden Mengen
- Lage der Hauptabsperrvorrichtungen für Wasser, Gas und Strom
- Lage von Transformatoren, Übergabestationen, elektrische Freileitungen
- Einspeisemöglichkeiten für Löschmittel in Steigleitungen und Löschanlagen
- Standorte von Brandmelderzentralen, Blitzleuchten und gegebenenfalls Feuerwehr-Bedienfeldern, Feuerwehr-Anzeigetableaus, Feuerwehr-Schlüsseldepot, Freischaltelementen
Die
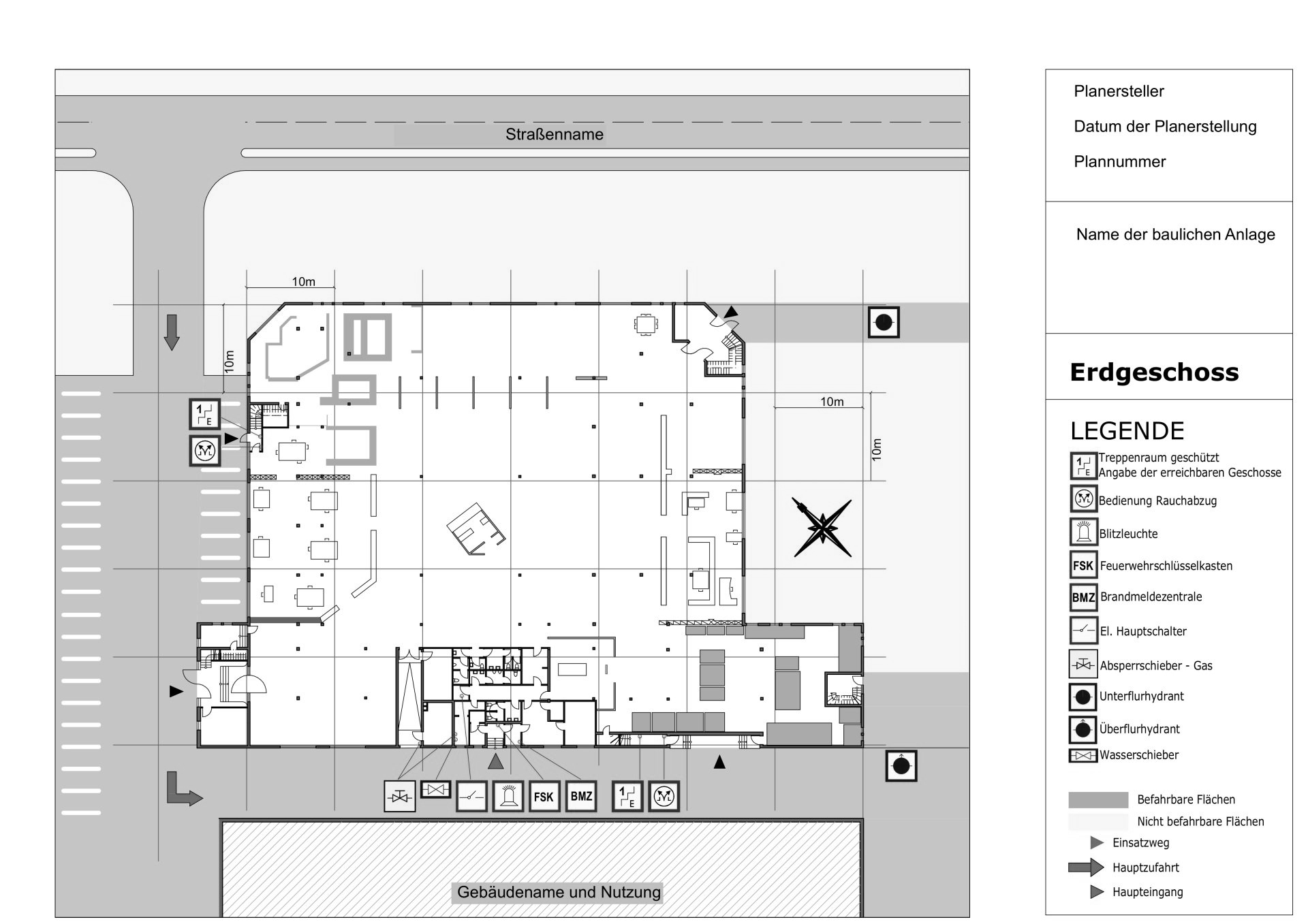
Objektpläne / Geschosspläne.
Hier werden die einzelnen Grundrisse der Geschosse aufgezeigt.
Angelehnt an übliche Bauzeichnungen müssen die Pläne Informationen, vorrangig der Brandbekämpfung dienend, enthalten.
Laut DIN 14095 sind unter anderem folgende Informationen darzustellen
- Geschossbezeichnung mit Fußbodenhöhe in Bezug auf die Zugangsebene
- die Nutzung der Räume
- Wände, Öffnungen, Zugänge und Ausgänge
- Treppenräume mit deren Laufrichtung, Bezeichnung der erreichbaren Geschosse
- Aufzüge und Förderanlagen
- nicht begehbare Flächen
- Hydranten und Steigleitungen, Löschanlagen und deren Art und Menge der Löschmittel
- Warnhinweise für Bereiche in denen bestimmte Löschmittel nicht eingesetzt werden dürfen
- Brandmeldeanlagen, Sprinkleranlagen, RWA-Bedienstellen
- Druckgasbehälter und Druckbehälter in deren Lage und Menge
- haustechnische Anlagen für Heizung, Lüftung, Energieversorgung
- elektrische Betriebsräume
- Absperreinrichtungen für Gas, Wasser, Strom, sowie für die Rohstoff-und Produktförderung
DieLegende.
Hier werden die verwendeten Symbole und Zeichen textlich erläutert. Die Gebäude werden in deren Nutzung beschrieben und Gefahrenbereiche aufgezeigt. Des Weiteren sind Angaben zu Gefahrenstoffen zu machen, Schutzmaßnahmen aufzuzählen, Löschmittel zu bestimmen und weitere, von der Brandschutzdienststelle geforderte Angaben zu leisten.
Die Sonderpläne.
Oft werden Pläne benötigt, um besondere Umstände darstellen zu können.
Diese Pläne könnenUmgebungspläne,
Detailpläne und Abwasserpläne sein.
Der
Umgebungsplan.
Reicht der Übersichtsplan für die Größe der zusammenhängenden Flächen und Anlagen und deren notwendigen Informationen nicht aus, dann ist ein Umgebungsplan mit wichtigen Angaben zu erstellen.
Diese können unter anderen sein
- Gebäude, bauliche Anlagen, angrenzende Bebauung und benachbarte Straßen
- Nutzung der Gebäude und Anlagen
- Zufahrten und deren Bezeichnung
- Eingeschränkte Durchfahrtshöhen und Durchfahrtsbreiten
Der
Detailplan.
Sind für die Brandbekämpfung wichtige Ausschnitte herauszuarbeiten, können diese als Detailpläne den jeweiligen Geschossplänen zugeordnet werden.
Diese Detailpläne sind in deren Ausschnitt als Piktogramm darzustellen, sodass deren Lage leicht dem entsprechenden Objekt- bzw. Geschossplan zugeordnet werden kann.
Der
Abwasserplan.
Ist eine Löschwasserrückhaltung nötig, wird hierzu ein Abwasserplan erstellt. Es werden unter anderem folgende Einrichtungen und Anlagen dargestellt
- Abwasserkanäle auf dem Grundstück
- Zuflüsse in das öffentliche Abwassernetz
- Vorfluter, Rückhaltebecken und Absperrmöglichkeiten
Zusätzliche
textliche Erläuterungen.
Diese werden den Feuerwehrplänen im Format A 4 beigefügt.Es finden sich folgende Angaben
- Nummer der Brandmeldeanlage
- Firmenspezifikation bzw. Nutzung
- Angaben zu den Betreibern einer Anlage, den Verantwortlichen, den Sicherheitsingenieur/ -beauftragen, den Werkschutz
- Personalbestand und Arbeitszeiten
- Kurzinformationen zur Gebäudekonstruktion
- Hinweis auf den Standort der Informationen über Gefahrstoffe
- Hinweise auf besondere betriebstechnische Anlagen
- Löschanlagen und Löscheinrichtungen
- Rauch- und Wärmeabzugsanlagen (RWA)
- Energieversorgung
- Aufzüge
- Server-Anlagen
- weitere wichtige technische Besonderheiten
Der
Einsatzplan.
Der Einsatzplan ist ein objekt- oder ereignisbezogener Plan für die Feuerwehr, mit Hinweisen auf deren einsatztaktische Maßnahmen.
Die
Ausführung der
Einsatzpläne.
Das
Format.
(DIN EN ISO 216 beachten)
Ein weißer Untergrund im Format A 4, Hochformat oder A 3, Querformat.
Die maximale Breite von 84cm ist bei größeren baulichen Anlagen zulässig.
Die Faltung erfolgt auf A 4 Hochformat.
Die einzelnen Unterlagen sind gegen Nässe und Verschmutzung zu schützen (Laminieren).
Feuerwehrpläne werden zusätzlich in digitaler Form auf Datenträgern unveränderlich übergeben.
Der
Maßstab.
(DIN ISO 5455:1979-12 beachten)
Die Darstellungen und Erläuterungen sollen den Plan füllen.
Ein einheitlicher Maßstab bei den Geschossplänen ist zu verwenden.
Feuerwehrpläne werden mit einem Raster oder einer Maßstabsleiste versehen.
Abstände von 10 Metern müssen dadurch erkennbar werden.
Bei Übersichtsplänen und Umgebungsplänen kann ein anderes Raster (z. B. 20 m oder 50 m) gewählt werden. Rasterlinien sind im Bereich von Straßen, Gebäuden und Geschossen zu unterbrechen.
Ein Nordpfeil
gibt auf den Plänen die Richtung an, Hauptzufahrt oder Hauptzugang sollen möglichst am unteren Rand des Planes liegen.

